- Woonoppervlakte
- Circa 72 m²
- Inhoud
- Circa 230 m³
- Bouwjaar
- Gebouwd in 1999
- Aantal kamers
- 2 kamers (1 slaapkamer)
FANTASTISCH APPARTEMENT (72 M²) AAN DE SCHITTERENDE BORNEOKADE IN HET OOSTELIJK HAVENGEBIED
Een fijne buurt om te wonen, waar vrijheid, water, rust en ruimte kenmerkend zijn voor een heerlijke woonomgeving. Dit ruime en speels ingedeelde appartement met een prachtig panoramisch uitzicht heeft een energielabel A en een ruime berging in de onderbouw. De grote raampartijen op het zuiden bieden vrij uitzicht over het water en zorgen voor een overvloed aan daglicht, wat het appartement een open en lichte uitstraling geeft. Het complex beschikt over een lift en het appartement maakt deel uit van een actieve Vereniging van Eigenaren, die professioneel wordt beheerd. De ligging is ideaal, zo is de Ring A-10 snel te bereiken en zijn alle denkbare voorzieningen op loop/fietsafstand. Kortom: een bijzonder appartement op een toplocatie in Amsterdam, met comfort, licht en ruimte in overvloed.
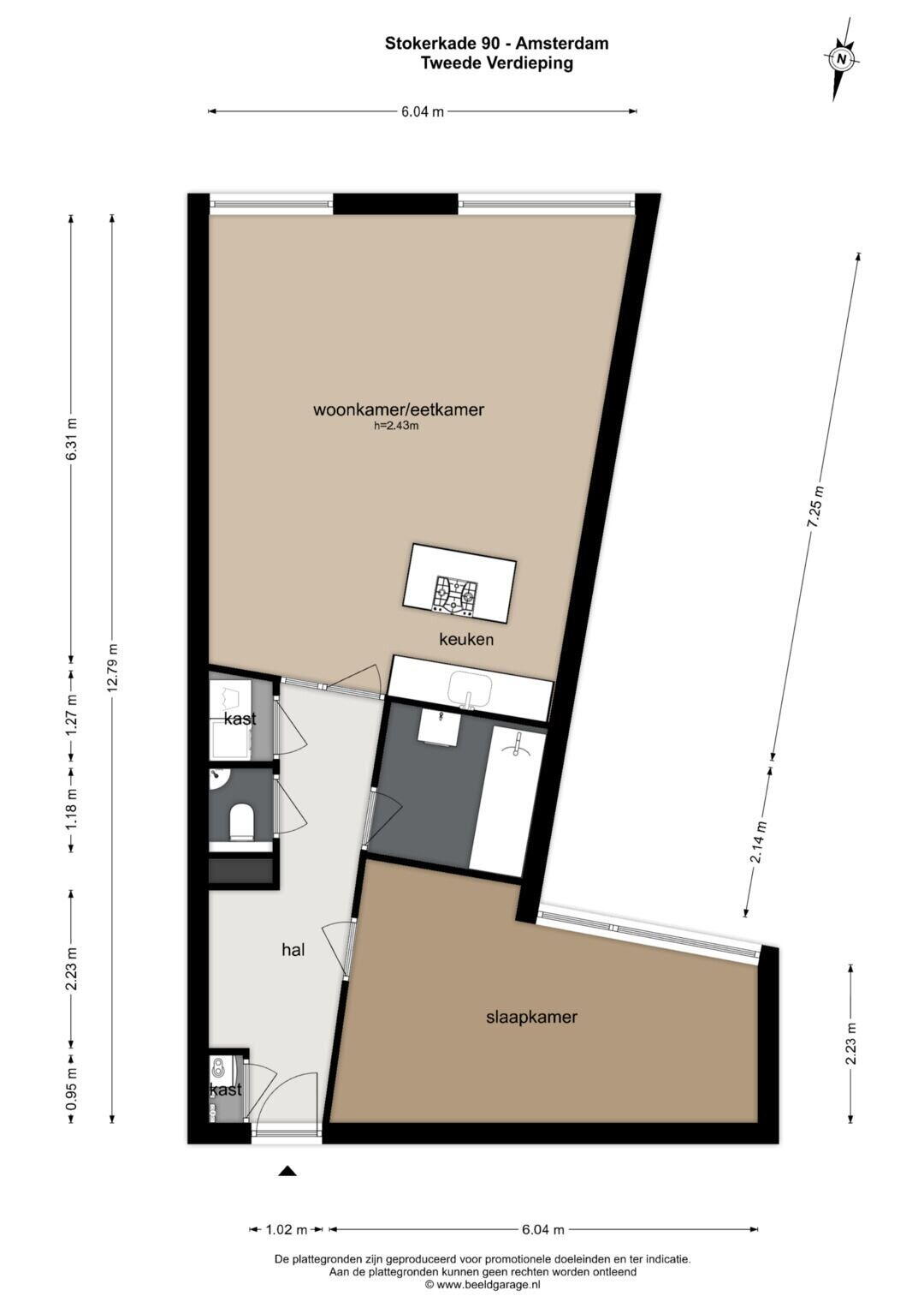
INDELING (zie plattegrond)
Via de nette en ruime gemeenschappelijke entree kan middels de lift of het trappenhuis de 2e etage worden bereikt. Vervolgens wordt via een besloten buiten gang de entree van het appartement bereikt. De ruime hal biedt plaats voor de garderobe, toilet en bergruimte met opstelplaats voor de wasmachine en droger. De hal is ruim genoeg om eventueel ook een werkplek te creëren. De ruime slaapkamer is zeer rustig gelegen en voorzien van een nis, ideaal voor het plaatsen van kasten. De badkamer is in het midden van het appartement gesitueerd en voorzien van een ligbad en een wastafel. Vervolgens de zeer ruime woonkamer met grote / bijna verdiepingshoge glazen puien met fantastisch vrij uitzicht over het water. De open keuken kan nog naar eigen wens worden ingevuld, en het appartement is onlangs nog gestuukt en geschilderd! De grote ronde lichtkoepel boven de keuken geeft een speels effect en veel daglicht. Onder het complex beschikt het appartement nog over een ruime berging, ideaal voor de fietsen e.d.
OMGEVING
De Stokerkade is rustig gelegen in het Oostelijk-Havengebied op het schiereiland Borneo tussen Cruquiuseiland en Sporenburg. En tussen de volop in ontwikkeling zijnde gebieden Oostenburg en de Sluisbuurt. De omgeving is ruimtelijk opgezet en bestaat uit een indrukwekkende mix van oude pakhuizen, moderne architectuur, industriële gebouwen, een haven en diverse horecagelegenheden en hippe winkels. Het appartement is zeer centraal gelegen vlakbij de Ringweg A-10. Met het centrum op 10 minuten fietsen zijn alle denkbare voorzieningen binnen handbereik. Maar ook in het Oostelijk Havengebied zelf is van alles te vinden: voor de dagelijkse boodschappen is er op loopafstand het grote winkelcentrum Brazilië. Daarnaast ligt de Dappermarkt vlakbij en is er op woensdag om de hoek een biologische markt. Sporten kan bij Train More en Crossfit, op de tennisbaan in het Rietlandpark of in het nabijgelegen Flevopark. Een frisse duik in het open water behoort ook tot de mogelijkheden. En (daarna) ontspannen bij een aantal zeer aantrekkelijke cafés, restaurants en uitgaansgelegenheden zoals hotel The Hoxton, The Harbour Club, brouwerij Krux, Club Panama, Sham Oost, Esra, La Contessa, Brouwerij ’t IJ, Oceaan, enz. En niet te vergeten, de Javastraat en de Czaar Peterstraat, tegenwoordig de plek voor koffieboetieks en trendy cafés/restaurants. De om de hoek gelegen pont maakt de verbinding met IJburg, Durgerdam en de nieuwe Sluisbuurt mogelijk. Kortom, een fantastische en centrale ligging met alles wat Amsterdam te bieden heeft binnen handbereik!
VVE
Het appartement maakt onderdeel uit van de actieve Vereniging van Eigenaren Borneo II, bestaande uit 54 koopwoningen. De VvE beschikt over een reservefonds en een meerjarenonderhoudsplan en wordt professioneel beheerd door De Huishouding. Het gezamenlijke onderhoud, waaronder schilderwerk, dak onderhoud en de opstalverzekering valt onder de VvE. Momenteel werkt de VvE aan een grootschalig onderhouds- en renovatieproject van de buitengevel aan de zuidzijde. De maandelijkse servicekosten bedragen € 202 en het aandeel in het reservefonds is ca. € 8.000. Stukken zijn op te vragen bij makelaar.
BIJZONDERHEDEN
- bouwjaar 1999
- oplevering per direct
- liftinstallatie aanwezig
- grote en actieve VvE met MJOP
- aangesloten op stadsverwarming
- volledig geïsoleerd (energielabel A)
- keuken naar eigen smaak te bepalen
- ruime berging (9m2) onder het complex
- zeer veel daglichttoetreding door daklicht
- geen wachttijd voor een parkeervergunning
- fantastisch vrij uitzicht over de Entrepothaven
- woonkamer op het zuiden met grote schuifpui
- gemeentelijke erfpacht is afgekocht tot 01-02-2048
- onder architectuur (Arne van Herk) gebouwd complex
- wanden en plafond onlangs gestuukt en geschilderd 2026
- zeer rustig ligging met weinig tot geen verkeer voor de deur
- overstap naar eeuwigdurende erfpacht notarieel vastgelegd
- adres is Stokerkade, maar volledig gelegen aan de Borneokade
- ideaal gelegen m.b.t. cafés/restaurants, winkels, uitvalswegen en OV
Deze informatie is door ons met de nodige zorgvuldigheid samengesteld. Onzerzijds wordt echter geen enkele aansprakelijkheid aanvaard voor enige onvolledigheid, onjuistheid of anderszins, dan wel de gevolgen daarvan. Alle opgegeven maten en oppervlakten zijn slechts indicatief. Lees de volledige omschrijving
Overdracht
- Vraagprijs
- € 550.000 k.k.
- Status
- Verkocht
- Bijdrage VvE
- € 202,00 per maand
Bouw
- Object type
- Bovenwoning (appartement)
- Soort bouw
- Bestaande bouw
- Bouwjaar
- 1999
- Toegankelijkheid
- Toegankelijk voor mensen met een beperking en toegankelijk voor ouderen
- Soort dak
- Plat dak bedekt met bitumineuze dakbedekking en metaal
Oppervlakte en inhoud
- Woonoppervlakte
- 72 m²
- Inhoud
- 230 m³
- Externe bergruimte
- 9 m²
Indeling
- Aantal kamers
- 2 kamers (1 slaapkamer)
- Aantal badkamers
- 1 badkamer en 1 apart toilet
- Badkamervoorzieningen
- Ligbad en wastafel
- Aantal woonlagen
- 1 woonlaag
- Gelegen op
- 2e woonlaag
- Voorzieningen
- Dakraam, lift, mechanische ventilatie, schuifpui, en TV kabel
Energie
- Energielabel
- A
- Energielabel registratie
- 20-01-2026
- Isolatie
- Volledig geïsoleerd
- Verwarming
- Stadsverwarming
- Warm water
- Centrale voorziening
Buitenruimte
- Ligging
- Aan rustige weg, aan vaarwater, aan water, in woonwijk, open ligging en vrij uitzicht
Parkeergelegenheid
- Soort parkeergelegenheid
- Betaald parkeren, openbaar parkeren en parkeervergunningen
VvE checklist
- Inschrijving KvK
- Ja
- Jaarlijkse vergadering
- Ja
- Periodieke bijdrage
- Ja (€ 202,00 per maand)
- Reservefonds aanwezig
- Ja
- Onderhoudsplan
- Ja
- Opstalverzekering
- Ja
Energieverbruik in Amsterdam
Energielabel deze woning
Energielabel A
Publicatie energielabel: 20-01-2026
Stroomverbruik per jaar
(Gemiddelde appartement in Amsterdam)
Gasverbruik per jaar
(Gemiddelde appartement in Amsterdam)
* Cijfers zijn afkomstig van het CBS en bedoeld als indicatie en kunnen verschillen voor deze woning
Indicatie hypotheeklasten
Eigen inleg:
Spaargeld / overwaarde
Rente:
Laagste 10-jaars rente
Laagste 10-jaars rente
2,78% - Centraal Beheer - NHG
3,04% - Centraal Beheer - 80%
Laagste 20-jaars rente
3,29% - Centraal Beheer - NHG
3,52% - Centraal Beheer - 80%
Laagste 30-jaars rente
3,41% - Centraal Beheer - NHG
3,7% - Argenta - 80%
Hypotheek:
Bruto maandlasten: € 0 p/m
Netto maandlasten: € 0 p/m
Hoe berekenen we dit?
Het rentepercentage is gebaseerd op de laagste 10 jaars vaste rente voor één hypotheekdeel. De vermelde rente (3.04% zonder NHG) is gecontroleerd op 27-04-2026. Deze berekening is gebaseerd op een annuïteitenhypotheek die volledig wordt afgelost, waarbij de maandlasten gedurende de gehele looptijd gelijk blijven. De werkelijke rente en netto maandlasten kunnen variëren, afhankelijk van uw persoonlijke situatie en de hypotheekverstrekker. Raadpleeg een financieel adviseur voor een nauwkeurige berekening en advies. Aan deze berekening kunnen geen rechten worden ontleend; het dient enkel als indicatie.
Documentatie
Kadastrale kaart
Leefomgeving
Plattegronden PDF
BAG uittreksel
Brochure
Meetrapport-stokerkade-90-amsterdam
Splitsingsreglement-1992
Splitsingstekening
Startplan-vve-borneo-30-05-2024-v2
Vve-balans-2026
Vve-dakonderhoud-contract
Vve-hhr-12-11-2000
Vve-jaarrekening-2023-begroting-2024
Vve-jaarrekening-2024-begroting-2025
Vve-jaarrekening-2025-begroting-2026
Vve-mjob
Vve-mjob-gebouw-van-herk-d-d-14-02-2019
Vve-mjop-10-jaar
Vve-mjop-15-jaar
Vve-mjop-30-jaar
Vve-mjop-vve-bo11-main-eerste-10-jaar-van-van-herk-inc-btw-inc-index
Vve-notulen-05-04-2023
Vve-notulen-09-04-2025
Vve-notulen-12-04-2022
Vve-notulen-15-05-2024
Vve-notulen-19-04-2021
Vve-onderzoek-buitenschil
Vve-onderzoek-info-buitenschil
Vve-polis-opstal-glas-aansprakelijkheid-verzekering
Nvm-vragenlijst-appartement-04-02-2026-14-00
Lijst-van-zaken-04-02-2026-14-00
Bezichtiging
Bod uitbrengen
Waardebepaling
Zoekopdracht
Alles downloaden
Zonnegrenzen bekijken
Op de kaart
Inwoners in Amsterdam
Cijfers voor postcodegebied 1019
- Totaal aantal inwoners
- 18980 inwoners
- Mannen
- 51%
- Vrouwen
- 49%
Inwoners in Amsterdam
Cijfers voor postcodegebied 1019
- tot 15 jaar
- 14%
- 15 tot 25 jaar
- 11%
- 25 tot 35 jaar
- 31%
- 45 tot 65 jaar
- 34%
- 65 en ouder
- 10%
Huishoudens in Amsterdam
Cijfers voor postcodegebied 1019
- Eenpersoons zonder kinderen
- 44%
- Meerpersoons zonder kinderen
- 27%
- Huishoudens zonder kinderen
- 71%
Huishoudens in Amsterdam
Cijfers voor postcodegebied 1019
- Huishoudens met één kind
- 9%
- Huishoudens met meerdere kinderen
- 20%
- Huishoudens met kinderen
- 29%
Woningen in Amsterdam
Cijfers voor postcodegebied 1019
- Woningen voor 1945
- 6%
- Woningen tussen 1945 en 1965
- 1%
- Woningen tussen 1965 en 1975
- 1%
- Woningen tussen 1975 en 1985
- 1%
- Woningen tussen 1985 en 1995
- 26%
Woningen in Amsterdam
Cijfers voor postcodegebied 1019
- Woningen tussen 1995 en 2005
- 53%
- Woningen tussen 2005 en 2015
- 9%
- Woningen na 2015
- 6%
- Huurwoningen
- 60%
- Koopwoningen
- 40%
Overige in Amsterdam
Cijfers voor postcodegebied 1019
- Gemiddelde WOZ waarde
- € 523.000,-
- Personen onder de 65 met uitkering
- 7%
Overige in Amsterdam
Cijfers voor postcodegebied 1019
- Adressen per km²
- 4310
- Stedelijkheid (schaal 1 op 5)
- 100%
Korte feiten over Amsterdam
Amsterdam is de hoofdstad van Nederland. De stad, in het Amsterdams ook Mokum genoemd (afkomstig uit het Jiddisch), ligt in de provincie Noord-Holland, aan het IJ, het Noordzeekanaal en de monding van de Amstel. De stad ligt in de gelijknamige gemeente Amsterdam en heeft 873.338 inwoners (1 januari 2021), Groot-Amsterdam telt 1.459.402 inwoners.
Thuis in Vastgoed
Indien u vragen heeft of u wilt een bezichtiging inplannen, dan kunt u gebruik maken van het formulier hiernaast. Er zal daarna op korte termijn contact met u worden opgenomen.
Contact opnemen
Thuis in Vastgoed
Het best beoordeelde makelaarskantoor van Amsterdam Oost en omgeving
Bent u op zoek naar een woning in Amsterdam of wilt u uw woning verkopen? Dan helpen wij u graag verder. Door onze locatie aan het Pireausplein in het Oostelijk Havengebied weten wij precies wat er speelt op en rond het KNSM-eiland maar ook in de rest van Amsterdam kennen wij de markt op ons duimpje. Gekoppeld aan onze persoonlijke service en benadering maakt dat wij beoordeeld zijn tot beste makelaarskantoor van Amsterdam-Oost en omgeving en wel met een 9,4!
Naast verkoopbemiddeling is Thuis in Vastgoed al sinds de start actief op het gebied van aankoopbegeleiding en hebben er inmiddels honderden mensen via ons kantoor een nieuwe woning gevonden. Uiteraard is Thuis in Vastgoed ook actief op het gebied van taxeren en aangesloten bij het NRVT en het NWWI. Voor diverse andere specialismen zoals verhuur, erfpachttaxaties, particuliere beleggingsadviezen en expatservices kunt u ook terecht bij Thuis in Vastgoed.
Wilt u weten wat we voor u kunnen betekenen? Dan bent u bij Thuis in Vastgoed, makelaarskantoor in Amsterdam, aan het juiste adres. Neem eens contact op met ons voor een vrijblijvend advies!
THUIS IN VASTGOED
GOED GEVOEL
Nieuwste reviews
-
Stokerkade 90
Fijne en vriendelijke makelaar, heeft veel kennis van de markt en geeft goed en eerlijk advies. Is flexibel en denkt met je mee. Reageert sn...
-
Ben van Meerendonkstraat 321
Mooi appartement gezocht gevonden en gekocht samen met Migiel. Ik ben zeer tevreden over hoe het is gegaan.
-
Derde Helmersstraat 3 3
Uitstekende service, kennis, en goede en eerlijke sparringpartner.Uitgebreid netwerk en contact met andere makelaars wat ook heel veel heeft...